電動調節球閥主要用于對管道介質壓力、流量、液位等參數的調整控制,一般分為電動O型調節球閥和電動V型調節球閥,通過輸入4-20mA信號及220VAC電源即可控制球閥的運轉開度。電動調節球閥根據使用工況不同,可選用軟密封或硬密封兩種形式,其中常溫常壓可選軟密封橡膠、聚四氟乙烯等,高溫高壓場合可選擇金屬材質硬密封,適用于各種化工、石化、石油、電力、液化氣、機械設備配套等領域。

電動V型調節球閥 電動O型調節球閥
電動調節球閥特點:
電動調節球閥內置伺服系統,無須另配伺服放大器,輸入4-20mA信號及220VAC電源即可控制運轉,其中電動V型調節球閥帶有特殊V型切口,不僅可將纖維切斷,防止卡死,它的V型開口可與閥座流道形成不同的V型角度,實現對管路介質各項參數的精確調節,適用于各種紙漿或纖維等粘稠介質,有效保證管路的流通,又能防止球閥球芯卡死的現象。
電動調節球閥參數:
| 公稱通徑 |
DN15~DN300(mm) |
| 公稱壓力 |
PN1.0、1.6、2.5、6.4MPa |
| 連接形式 |
法蘭式,對夾式 |
| 驅動形式 |
電源驅動(可選防爆型,自帶手動裝置) |
| 電源電壓 |
AC110V、AC220V、AC380V(其他定制DC24) |
| 閥芯形式 |
O型球型閥芯,V型閥芯結構 |
| 泄露量 |
按GB/T4213-92,小于額定KV0.01% |
| 動作時間 |
8~30(DN15-50) 36~60(DN65-300)可定制 |
| 閥體材質 |
碳鋼、不銹鋼304、316 |
| 流量特性 |
近似快開特性 |
| 適用溫度 |
軟密封-40℃~-180℃;硬密封-40℃~-450℃ |
| 控制方式 |
智能調節型(輸入輸出4-20mA模擬量信號實現調節功能) |
| 使用介質 |
蒸汽、紙漿、污水、含有纖維顆粒固體懸浮介質及粉粒狀介質 |
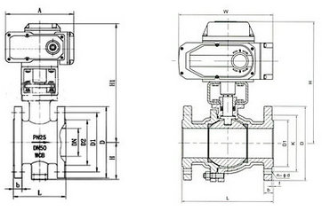
電動調節球閥結構圖:
電動調節球閥性能指標:
控制精度:0.1%-3.0%(通過U4參數可調)
可接電動執行器反饋信號:電位器500Ω-10KΩ
可接收外部控制信號(DC):4-20mA(1-5V、0-10V、開關量等出廠前定制)
輸入阻抗:250Ω;
通過修改U1參數可設定:①DRTA/正動作,RVSA/逆動作模態②輸入信號中斷時“中斷”模態—OPEN(開)、STOP(停)、SHUT(閉)
可選:①可控硅輸出(AC,600V,25A)②繼電器輸出(AC,250V,10A)◆定貨時指明
輸出執行器位置信號:低漂移輸出4-20mADC對應執行器全閉至全開,信號完全與輸入隔離(光電隔離),輸出負載≤500Ω
環境溫度:0-70℃,濕度:35-85%
有超溫保護功能:定位器殼內溫度≥70℃時,定位器停止對執行器的開閉控制,可通過按鍵自由標定輸入信號所對應執行器的動作區間(一般標定為電動執行器全閉、全開位置)
電動調節球閥圖片